Prestige Line | Veyna - Płyty warstwowe, wypełnienia drzwiowe

Język

Prestige Line

Prestige Line (ALU)

Jest to oferta przeznaczona dla osób idących z duchem czasu. Proste linie, oryginalne wzornictwo i modne elementy ozdobne nadają nowoczesny wygląd dostosowany do Państwa gustu. Drzwi wyposażone w nasze panele nakładkowe zyskują na niepowtarzalności. Elewacje wejściowe przyciągają uwagę – są eleganckie i ponadczasowe. Wypełnienia Prestige Line to bezpieczeństwo połączone z wysoką izolacyjnością i estetyką. Grubości wypełnień nakładkowych są dopasowane do grubości najpopularniejszych systemów profilowych takich jak: ALUPROF, ALIPLAST, PONZIO, ALURON, YAWAL, SO EASY (BLYWEERT), REYNAERS, SCHÜCO HEROAL, CORTIZO.

Parametry:

  • maksymalny wymiar objęty gwarancją 1250 x 2500 mm;
  • Budowa:
    • okładzina zewnętrzna z blachy aluminiowej gatunek 5754/ H 22 o grubości 3 mm,
    • guma dylatacyjna o grubości 5 mm,
    • XPS twarda pianka izolacyjna,
    • okładzina wewnętrzna z blachy aluminiowej gatunek 5754/ H 22 o grubości 2 mm;
  • całkowita grubość wypełnienia w przypadku wypełnień nakładkowych obustronnych uzależniona jest od stosowanego systemu profilowego drzwi;
  • standardowa grubość przy panelu jednostronnie nakładkowym to zakres 44 mm – 65 mm, inne grubości dostępne na zapytanie;
  • w przypadku jednostronnego wypełnienia nakładkowego: dwukomorowe szkło o współczynniku Ug 0,7 W/ m² K; współczynnik przenikalności cieplnej dla drzwi nakładkowych UD od 0,9 W/ m² K;
  • w przypadku dwustronnego wypełnienia nakładkowego: trzykomorowe szkło o współczynniku Ug 0,5 W/ m² K; współczynnik przenikalności cieplnej dla drzwi nakładkowych: UD od 0,61 W/m² K.
PL-01
wymiary szczegółowe
PL1
PL-02
wymiary szczegółowe
PL2
PL-03
wymiary szczegółowe
PL3
PL-04
wymiary szczegółowe
pl4
PL-05
wymiary szczegółowe
pl5
PL-06
wymiary szczegółowe
pl6
PL-07
wymiary szczegółowe
pl7
PL-08
wymiary szczegółowe
pl8
PL-09
wymiary szczegółowe
pl9
PL-10
wymiary szczegółowe
pl10
PL-11
wymiary szczegółowe
pl11
PL-12
wymiary szczegółowe
pl12
PL-13
wymiary szczegółowe
pl13
PL-14
wymiary szczegółowe
pl14
PL-15
wymiary szczegółowe
pl15
PL-16
wymiary szczegółowe
pl16
PL-17
wymiary szczegółowe
pl17
PL-18
wymiary szczegółowe
pl18
PL-19
wymiary szczegółowe
pl19
PL-20
wymiary szczegółowe
pl20
PL-21
wymiary szczegółowe
pl21
PL-22
wymiary szczegółowe
pl22
PL-23
wymiary szczegółowe
pl23
PL-24
wymiary szczegółowe
pl24
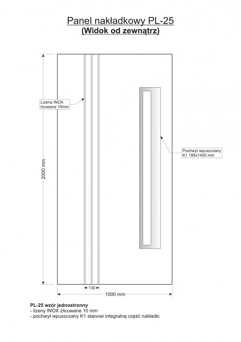
PL-25
wymiary szczegółowe
pl25
PL-26
wymiary szczegółowe
pl26
PL-27
wymiary szczegółowe
pl27
PL-28
wymiary szczegółowe
pl28
PL-29
wymiary szczegółowe
pl29
PL-30
wymiary szczegółowe
pl30
PL-31
wymiary szczegółowe
pl31
PL-32
wymiary szczegółowe
pl32
PL-33
wymiary szczegółowe
pl33
PL-34
wymiary szczegółowe
pl34
PL-35
wymiary szczegółowe
pl35
Dostępne modele
pl4
PL-04
pl13
PL-13
pl22
PL-22
pl31
PL-31
pl8
PL-08
pl17
PL-17
pl26
PL-26
PL3
PL-03
pl35
PL-35
pl12
PL-12
pl21
PL-21
pl30
PL-30
pl7
PL-07
pl16
PL-16
pl25
PL-25
PL2
PL-02
pl34
PL-34
pl11
PL-11
pl20
PL-20
pl29
PL-29
pl6
PL-06
pl15
PL-15
pl24
PL-24
PL1
PL-01
pl33
PL-33
pl10
PL-10
pl19
PL-19
pl28
PL-28
pl5
PL-05
pl14
PL-14
pl23
PL-23
pl32
PL-32
pl9
PL-09
pl18
PL-18
pl27
PL-27

Paleta_RAL

Cała paleta kolorów RAL.

Możliwy wybór producenta lakieru.

Paleta_RAL
Oszklenie

Szkło ornamentowe

W ofercie posiadamy grupę najbardziej popularnych ornamentów na rynku europejskim marki Pilkington. Możliwe jest zastosowanie każdego innego ornamentu i rodzaju szkła dostępnego na rynku, przy czym należy liczyć się z wydłużonym terminem realizacji. Możliwe jest także zastosowanie dodatkowych szprosów ozdobnych pomiędzy szybami, zastosowania szyb bezpiecznych czy termoizolacyjnych.

Dodane do porównania

 
 

Error

Maximum of Three products are allowed for comparision